197 Loftus Avenue, Loftus
Live Now - Build Later
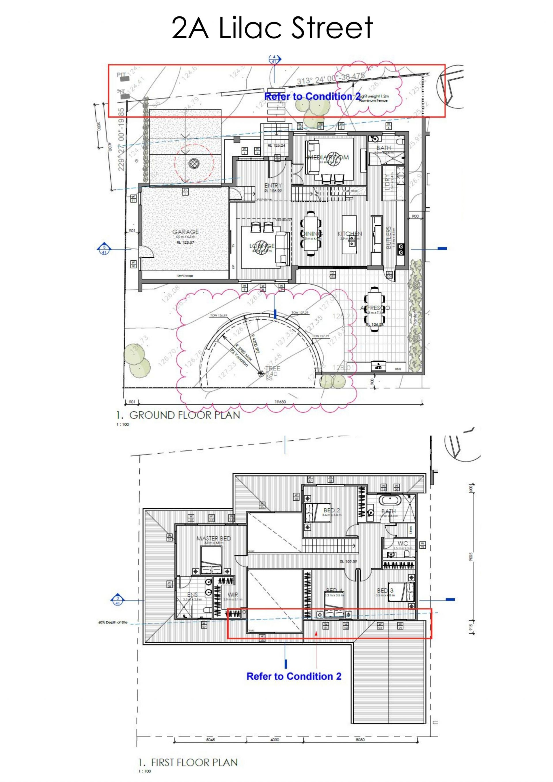
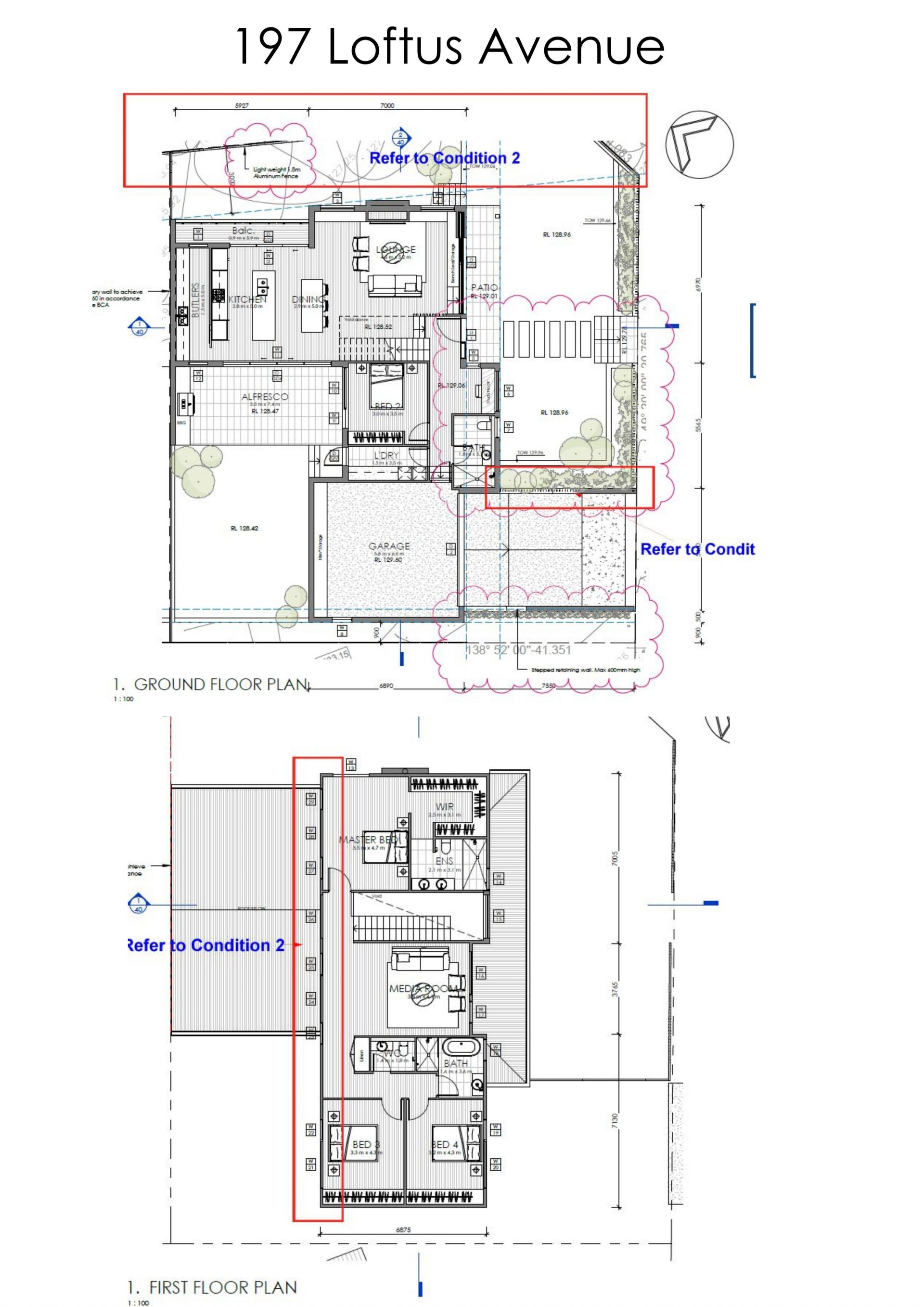
DA Approved Duplex Development
Are you ready to start your next project and want to avoid the DA process with council? Well this could be the project for you! Perfect for a builder looking to hit the ground running or possible a joint venture between family or friends looking to build together.
The DA approval consists of two architecturally designed, four bedroom duplexes both being two storey in design and detached. The corner design giving each their own street frontage and the floor plan offering two separate living areas as well as outdoor entertaining and double lock up garage.
Located just 1.1km to Loftus station, these low maintenance abodes will offer all of todays modern conveniences on a low maintenance block.
Current Home:
Nestled in the family friendly suburb of Loftus this charismatic two storey home is ideal for a multi generational family. Offering a flexible floor plan with three bedrooms, living and kitchen on the top floor and self contained two bedroom and living on the ground floor, this home could also suit dual family living.
* Currently tenanted till 16.11.23 for $730 a week
Distance to amenities:
- 750m to Loftus Public School
- 1.1km to Loftus Station
- 3.7km to Engadine CBD
- 2.8km to Sutherland CBD
- 2.9km to Sutherland Leisure Centre
* Auction Wednesday 16th August 6.00pm at Tradies Gymea 57 Manchester Rd, Gymea NSW 2227
Total Land Size: 891.6m²
Are you ready to start your next project and want to avoid the DA process with council? Well this could be the project for you! Perfect for a builder looking to hit the ground running or possible a joint venture between family or friends looking to build together.
The DA approval consists of two architecturally designed, four bedroom duplexes both being two storey in design and detached. The corner design giving each their own street frontage and the floor plan offering two separate living areas as well as outdoor entertaining and double lock up garage.
Located just 1.1km to Loftus station, these low maintenance abodes will offer all of todays modern conveniences on a low maintenance block.
Current Home:
Nestled in the family friendly suburb of Loftus this charismatic two storey home is ideal for a multi generational family. Offering a flexible floor plan with three bedrooms, living and kitchen on the top floor and self contained two bedroom and living on the ground floor, this home could also suit dual family living.
* Currently tenanted till 16.11.23 for $730 a week
Distance to amenities:
- 750m to Loftus Public School
- 1.1km to Loftus Station
- 3.7km to Engadine CBD
- 2.8km to Sutherland CBD
- 2.9km to Sutherland Leisure Centre
* Auction Wednesday 16th August 6.00pm at Tradies Gymea 57 Manchester Rd, Gymea NSW 2227
Total Land Size: 891.6m²
overview
-
7597435
-
$ 1,657,777
-
House
-
Sold
-
197 Loftus Avenue Loftus NSW
-
8
-
6
-
4
-
892 sqm
-
4
